REQUEST A TOUR If you would like to see this home without being there in person, select the "Virtual Tour" option and your agent will contact you to discuss available opportunities.
In-PersonVirtual Tour

Listed by Dylan Mezick • SVN/Miller Commercial Real Estate
$ 28
1.03 Acres Lot
$ 28
1.03 Acres Lot
Key Details
Property Type Commercial
Sub Type Retail
Listing Status Active
Purchase Type For Rent
MLS Listing ID MDWC2020636
Year Built 2013
Lot Size 1.030 Acres
Acres 1.03
Lot Dimensions 0.00 x 0.00
Property Sub-Type Retail
Source BRIGHT
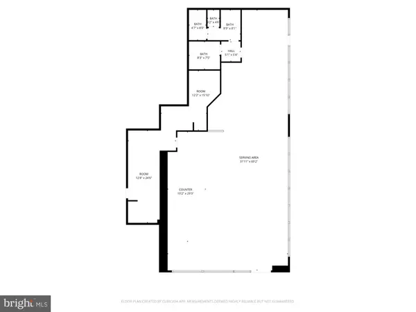
Property Description
Presenting the former Moe's Southwest Grill location in North Salisbury, MD. This 2775 SF space offers an inviting open floor plan with ample seating, complemented by a hood, grease trap, triple basin sink, walk-in refrigerator, and other kitchen equipment - perfect for any restaurant concept. Positioned strategically along route 13, with impressive traffic counts of up to 35,000 cars daily, this prime area is already home to Dunkin Donuts and other thriving national brands.
Location
State MD
County Wicomico
Area Wicomico Northwest (23-01)
Zoning GC
Interior
Hot Water Electric
Heating Other
Cooling Central A/C
Heat Source Central, Electric
Exterior
Garage Spaces 51.0
Water Access N
Accessibility 32\"+ wide Doors
Total Parking Spaces 51
Garage N
Building
Sewer Public Sewer
Water Public
New Construction N
Schools
School District Wicomico County Public Schools
Others
Tax ID 2309096590
Ownership Other









